Schloß Holte-Stukenbrock / Hövelhof / Augustdorf

NW+-Icon
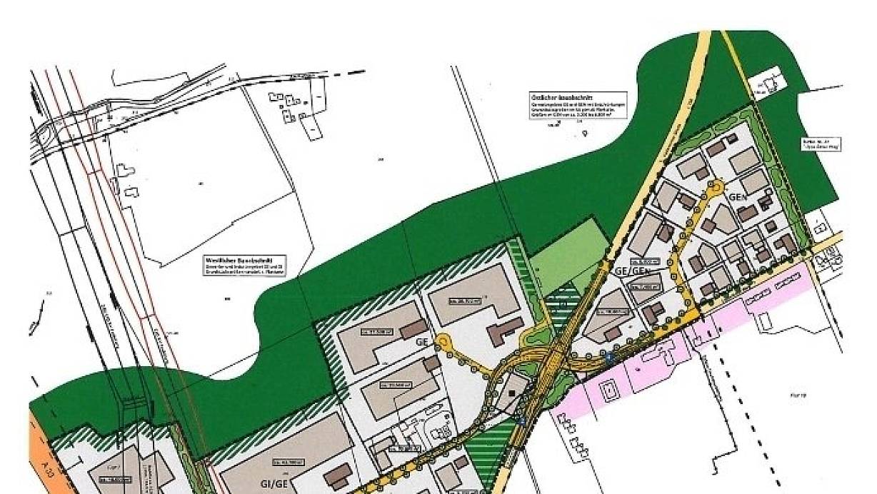
Regionalplan sieht keine Wohnhäuser in Stukenbrock-Senne vor

CDU-Fraktionschef relativiert. Gesellschafter waren nicht informiert. Der Vortrag des Planers als Video jetzt verfügbar.

Die CDU fordert Wohnungen auf dem Areal am rechten Bildrand. Der Regionalplan lässt aber nur Gewerbe zu. | © Tischmann Loh

Sigurd Gringel
21.05.2020 | 21.05.2020, 06:00

Bitte bestätigen Sie Ihre E-Mail-Adresse!

Den Link zur Bestätigung finden Sie in Ihrem E-Mail-Postfach. Kehren Sie danach zurück und melden Sie sich mit Ihren Benutzerdaten an. Im Anschluss können Sie alle Artikel lesen.
NW+-Logo

Jetzt weiter mit NW+

Sie haben bereits ein Digital-Abo? Zum Login

NW+-Logo
  • alle Artikel freischalten
  • flexibel monatlich kündbar
  • NW+-Updates per Mail

Ab dem 7. Monat nutzen Sie das Angebot für derzeit monatlich 8,00 € und ab dem 13. Monat für monatlich 14,90 € automatisch weiter. Sie können dieses Angebot jederzeit bequem monatlich kündigen.

NW+-Logo
  • bequeme jährliche Zahlung
  • jederzeit aktuell – in Web und App
  • inkl. NW+-Updates per E-Mail und NW-Karte

Ab dem 2. Jahr nutzen Sie das Angebot zum gültigen Bezugspreis automatisch weiter. Sie können dann dieses Angebot jederzeit bequem kündigen.

Sie haben bereits ein Print-Abo?
Hier rabattiert Digital-Zugang bestellen