Herford

NW+-Icon
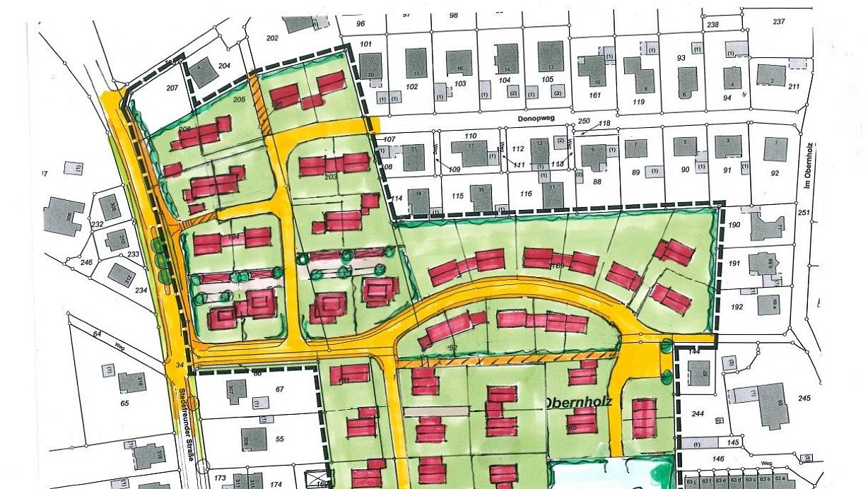
Wohngebiet in Stedefreund: Steht die Kita auf der Kippe?

Geplantes Wohngebiet: Themen sind jetzt auch ein Quartierstreff und weiterhin die Entwässerung. Letzteres macht den Bürgern Sorgen.

Der neue Entwurf: Links liegt die Stedefreunder Straße, über den der Verkehr von und ins Wohngebiet fließen soll. | © Stadt Herford

Corina Lass
16.09.2019 | 16.09.2019, 13:28

Bitte bestätigen Sie Ihre E-Mail-Adresse!

Den Link zur Bestätigung finden Sie in Ihrem E-Mail-Postfach. Kehren Sie danach zurück und melden Sie sich mit Ihren Benutzerdaten an. Im Anschluss können Sie alle Artikel lesen.
NW+-Logo

Jetzt weiter mit NW+

Sie haben bereits ein Digital-Abo? Zum Login

NW+-Logo
  • alle Artikel freischalten
  • flexibel monatlich kündbar
  • NW+-Updates per Mail

Ab dem 7. Monat nutzen Sie das Angebot für derzeit monatlich 8,00 € und ab dem 13. Monat für monatlich 14,90 € automatisch weiter. Sie können dieses Angebot jederzeit bequem monatlich kündigen.

NW+-Logo
  • bequeme jährliche Zahlung
  • jederzeit aktuell – in Web und App
  • inkl. NW+-Updates per E-Mail und NW-Karte

Ab dem 2. Jahr nutzen Sie das Angebot zum gültigen Bezugspreis automatisch weiter. Sie können dann dieses Angebot jederzeit bequem kündigen.

Sie haben bereits ein Print-Abo?
Hier rabattiert Digital-Zugang bestellen